Naročnik: Corwin si, razvoj nepremičninskih projektov, d.o.o.
Lokacija: Ljubljana, Slovenija
Tip: Stanovanjska soseska
Datum: 2019 –
Status: V izvedbi
Spletna stran: www.kvartet.si
Opis projekta:
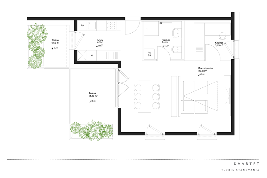
Soseska Kvartet je trenutno največji stanovanjski projekt v Ljubljani, ki je bil projektiran s strani OFIS arhitektov. Podjetje Corwin si, d.o.o je projekt zasnovalo z namenom ustvariti sodobno in dinamično mestno življenje z razgledi na naravo.
Gre za štiri 15 nadstropne stolpe, ki ponujajo eno-, dvo-, tri- in štirisobna stanovanja. V zgornjih terasastih nadstropjih se nahajajo nadstandardna stanovanja z razgledi v naravo, kjer so stolpnice stopničasto znižane in ustvarjajo vizualni dialog z alpskimi vrhovi na obzorju.
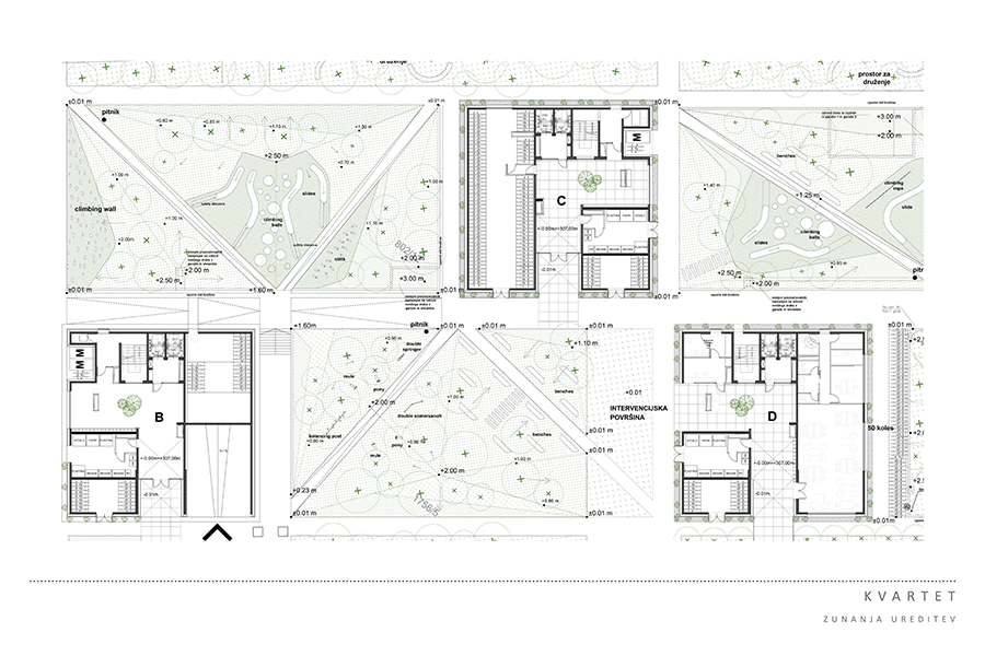
Slogan ‘Mestno življenje s pridihom narave’ narekuje zelen koncept arhitekture, ki s prostornimi terasami in ložami tudi v bivalnih prostorih povezuje ljudi z naravo. Krajinsko arhitekturna zasnova pa stolpiče umesti med zelenje in krošnje dreves, kjer se razprostirajo igralne in rekreacijske površine ter prostori za oddih.
S sodelovanjem na tako obsežnem projektu sem se naučila zelo veliko o arhitekturi, kot tudi oblikovanju odprtih delno zasebnih zelenih površin. Poleg krajinsko arhitekturnega projektiranja sem opravljala tudi velik del arhitekturnega projektiranja in usklajevanja z ostalimi projektanti in investitorji.
Ekipa in sodelujoči:
Rok Oman, univ. dipl. inž. arh., M.Arch. (AA)
Špela Videčnik, univ. dipl. inž. arh., M.Arch. (AA)
Rok Vrenko u.d.i.a.
Urša Dirjec Meško u.d.i.a.
Katja Govednik, dipl. inž. kraj. arh.
Mojca Bek, mag. inž. arh.
Janez Martinčič
José Navarrete Jiménez, Arq.
Laura Martínez Vega, Arq.
Tereza Mirská, ing. arch.
Anna Longauerova, štud. arh.
Ewa Tomaczyk, inż. arch.
Andrej Gregorič